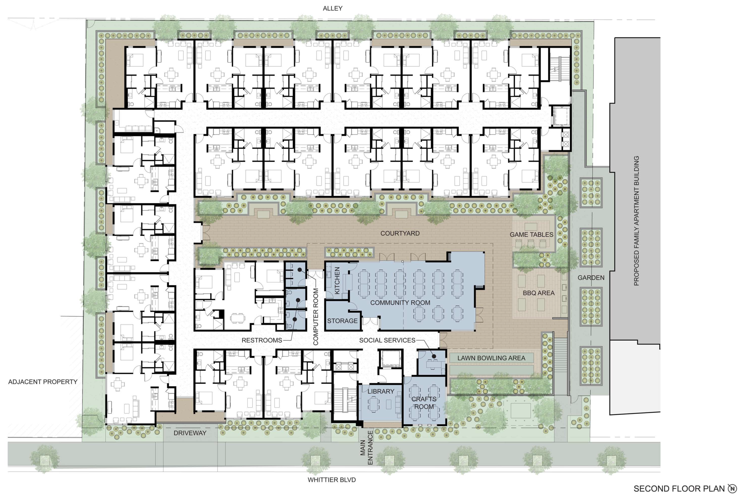
LAS ALTURAS
Client | Retirement Housing Foundation
Location | Los Angeles, CA
Type | Senior Affordable Housing
Program | 78 Apartments
Size | 103,540 GSF
Completion | 2014
Sustainability | 2015 LEED Gold
Awards | 2013 Gold Nugget Award of Merit - Best Senior Housing Community - On the Boards
